Home Search Results
14881 NW HIGHCROFT CTPortland, OR 97229




Mortgage Calculator
Monthly Payment (Est.)
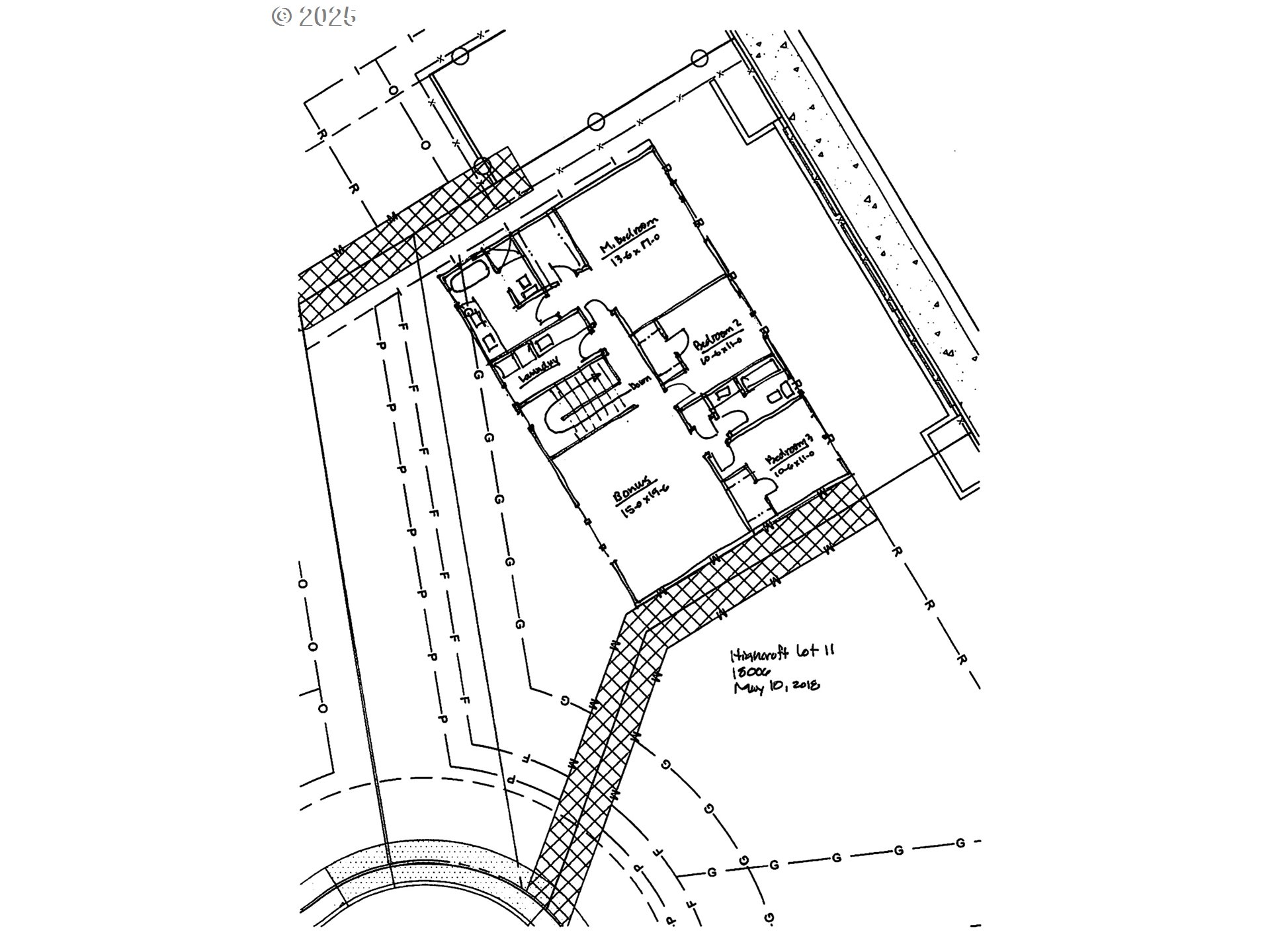
$3,189Proposed new construction on ready to build level lot in established Bethany neighborhood feeding to Jacob Wismer elementary, Stoller middle and Sunset high. 2,098 SF house with bonus room and three bedrooms, including primary suite, all upstairs, open great room and 2 car garage on main level, while still leaving room for 14 feet deep back yard. Work with Hillcrest Homes, an established builder who has built four home in the neighborhood, or bring your own builder. Quiet neighborhood of two cul-de-sacs. All utilities available to lot line. Lot and construction financing available.
| 4 days ago | Listing updated with changes from the MLS® | |
| 4 days ago | Listing first seen on site |
The content relating to real estate for sale on this website comes in part from the IDX program of the RMLS™ of Portland, Oregon. Real estate listings held by brokerage firms other than are marked with the RMLS™ logo, and detailed information about these properties includes the names of the listing brokers. Listing content is Copyright © 2025 RMLS™, Portland, Oregon. Some properties which appear for sale on this website may subsequently have sold or may no longer be available.
Last checked 2025-10-26 02:00 AM PDT.
All information provided is deemed reliable but is not guaranteed and should be independently verified


Did you know? You can invite friends and family to your search. They can join your search, rate and discuss listings with you.