Home Search Results
18630 SW SOLITUDE STBeaverton, OR 97007




Mortgage Calculator
Monthly Payment (Est.)
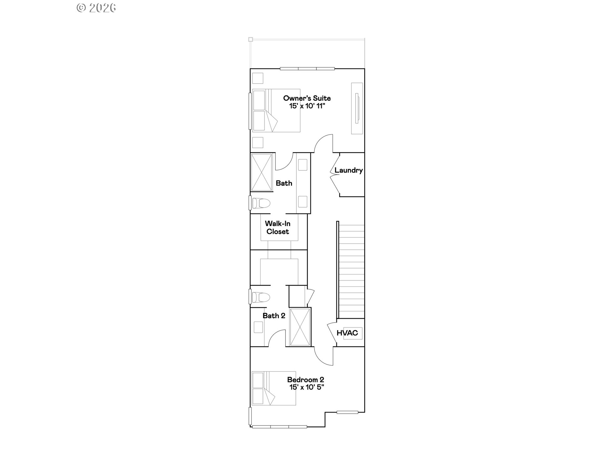
$2,144Welcome to Scholls Heights! This new construction townhome with the Bella floorplan offers three levels of stylish and functional living. On the entry level, a tandem two-bay garage sits alongside a private den, ideal for work or quiet relaxation. The second floor showcases an open-concept layout that connects the kitchen, dining area, and great room, extending to a covered deck for outdoor enjoyment. A secondary bedroom on this level provides flexibility for guests or a home office. Upstairs are two primary suites, each with an en-suite bathroom and a walk-in closet. Interior finishes include quartz countertops, slab-style cabinets, matte black hardware, and LVP (luxury vinyl plank) flooring. Premium upgrades add a modern touch with under-cabinet lighting and a picket-style backsplash. The home also includes central air conditioning, a refrigerator, washer and dryer, and blinds—all at no extra cost. Located in Beaverton, Scholls Heights offers easy access to downtown Portland, renowned schools, lush parks, and a thriving dining scene. With nearby shopping, outdoor recreation, and major employers, this vibrant community combines comfort and convenience. Rendering is artist conception only. Photos are of a similar home, features and finishes will vary. Incentives available with the use of our preferred lender! Bella Plan, Homesite 58, move in ready!
| 3 hours ago | Listing updated with changes from the MLS® | |
| 3 hours ago | Listing first seen on site |
The content relating to real estate for sale on this website comes in part from the IDX program of the RMLS™ of Portland, Oregon. Real estate listings held by brokerage firms other than are marked with the RMLS™ logo, and detailed information about these properties includes the names of the listing brokers. Listing content is Copyright © 2026 RMLS™, Portland, Oregon. Some properties which appear for sale on this website may subsequently have sold or may no longer be available.
Last checked 2026-03-02 06:18 PM PST.
All information provided is deemed reliable but is not guaranteed and should be independently verified


Did you know? You can invite friends and family to your search. They can join your search, rate and discuss listings with you.