Home Search Results
9283 SW Salinan STTualatin, OR 97062

Mortgage Calculator
Monthly Payment (Est.)
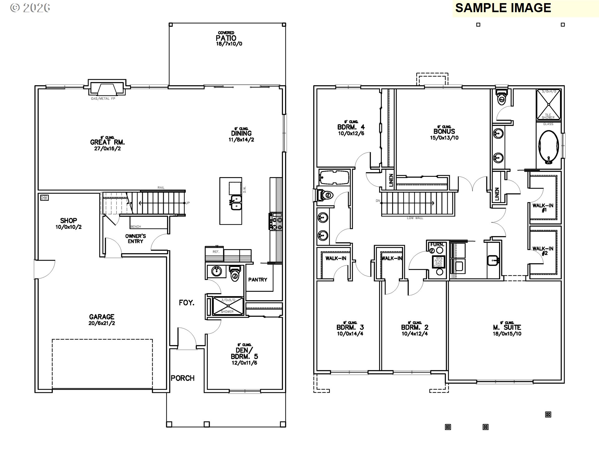
$3,959The main level features a versatile bedroom or den with a closet and a full bathroom. The kitchen showcases Mission-style shaker alder cabinetry with multiple upgrades and elegant slab quartz countertops throughout the kitchen and bathrooms. Whirlpool stainless-steel kitchen appliances, including a 5-burner gas cooktop, double wall ovens, stainless-steel-tub dishwasher, and a chimney hood vent. Bathrooms are appointed with Delta Woodhurst plumbing fixtures in a sleek black finish. The open great room creates an inviting gathering space, highlighted by a floating gas fireplace with a box-beam wood mantle. The primary suite offers a 5'×4' all tile shower, a relaxing garden tub, dual-sink vanity, and a spacious dual walk-in closets. Front and rear landscaping included and fully fenced with a gate. Additional features include a tankless water heater, central A/C, and Earth Advantage Certified! Builder incentive available.
| 5 days ago | Listing updated with changes from the MLS® | |
| 6 days ago | Listing first seen on site |
The content relating to real estate for sale on this website comes in part from the IDX program of the RMLS™ of Portland, Oregon. Real estate listings held by brokerage firms other than are marked with the RMLS™ logo, and detailed information about these properties includes the names of the listing brokers. Listing content is Copyright © 2026 RMLS™, Portland, Oregon. Some properties which appear for sale on this website may subsequently have sold or may no longer be available.
Last checked 2026-03-11 03:31 AM PDT.
All information provided is deemed reliable but is not guaranteed and should be independently verified

